Navigation überspringen Sitemap anzeigen

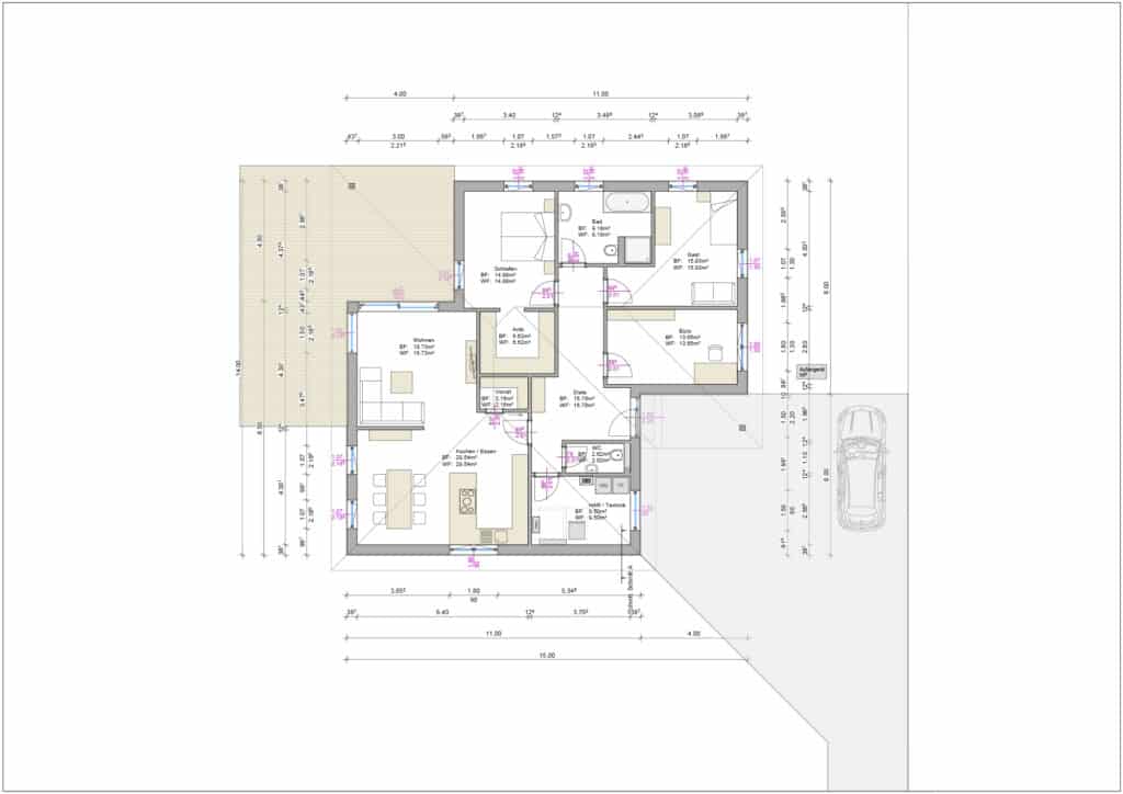
WINKELBUNGALOW 140

Bungalow Bungalow Walmdach 140

Hausdaten

Haustyp

Bungalow

Dachform

Walmdach

Wohnfläche gesamt

140 m²

Wohnfläche Erdgeschoss

140 m²

Hauslänge

15,00 m

Hausbreite

14,00 m

Dachneigung

25°

Extras

Teil­über­dach­te Ter­ras­se | Eingangsvordach

Grundrisse

Zum Seitenanfang