Navigation überspringen Sitemap anzeigen

TRENDLINE 177

Satteldachhaus Satteldachhaus Satteldach 1.80m - 2.20m 177

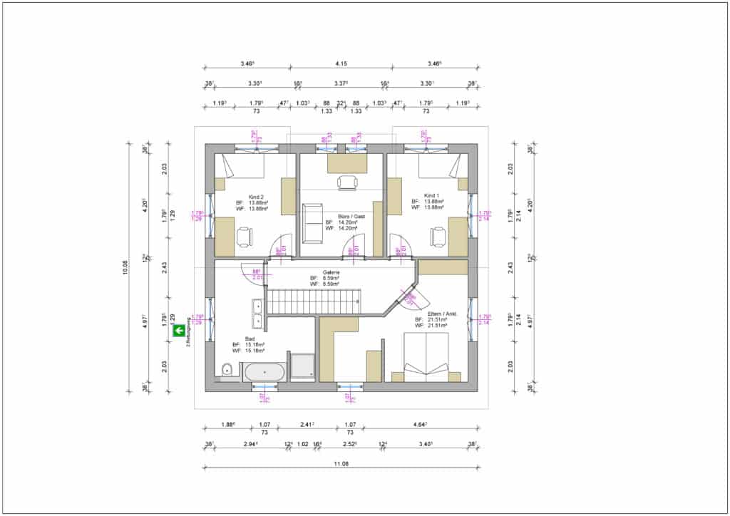
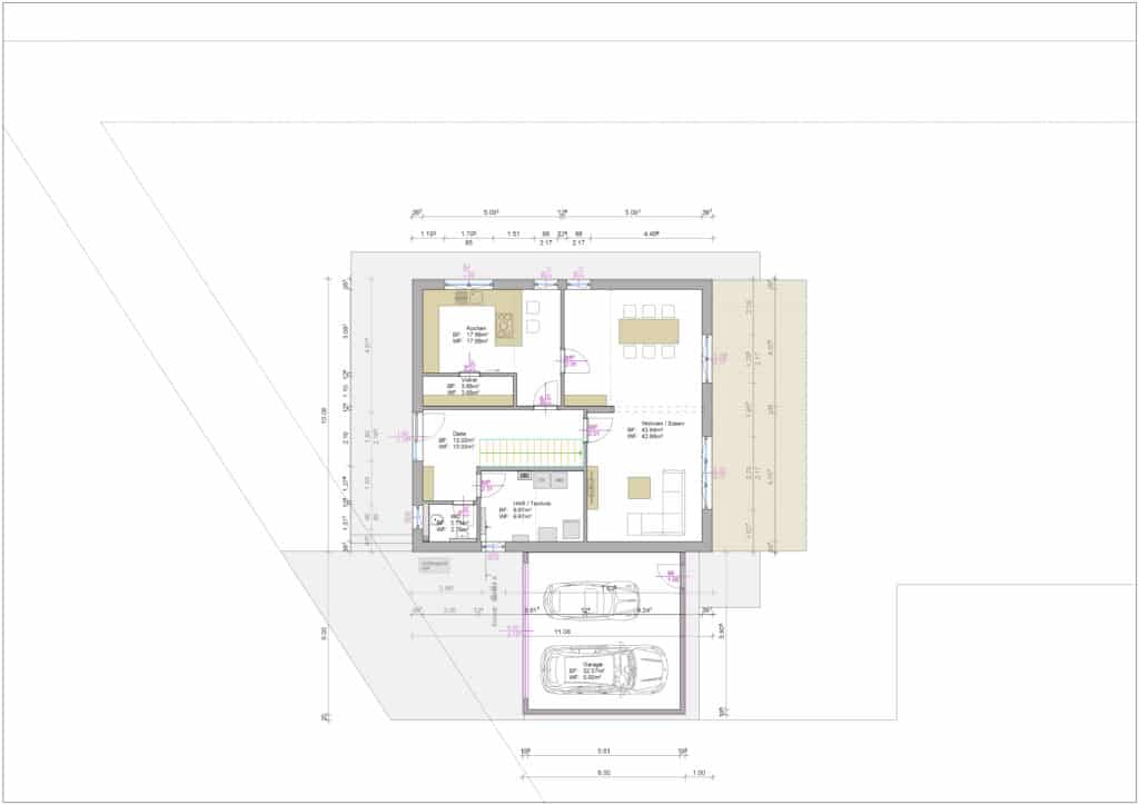
Hausdaten

Haustyp

Satteldachhaus

Dachform

Satteldach

Wohnfläche gesamt

177 m²

Wohnfläche Erdgeschoss

90 m²

Wohnfläche Dachgeschoss

87 m²

Hauslänge

11,08 m

Hausbreite

10,08 m

Dachneigung

32°

Drempelhöhe

2,20 m

Extras

Quer­gie­bel | Car­port oder/und Gara­ge in gewünsch­ter Grö­ße optional

Grundrisse

Zum Seitenanfang