Navigation überspringen Sitemap anzeigen

TRENDLINE 165

Satteldachhaus Satteldachhaus Satteldach 1.80m - 2.20m 165

Hausdaten

Haustyp

Satteldachhaus

Dachform

Satteldach

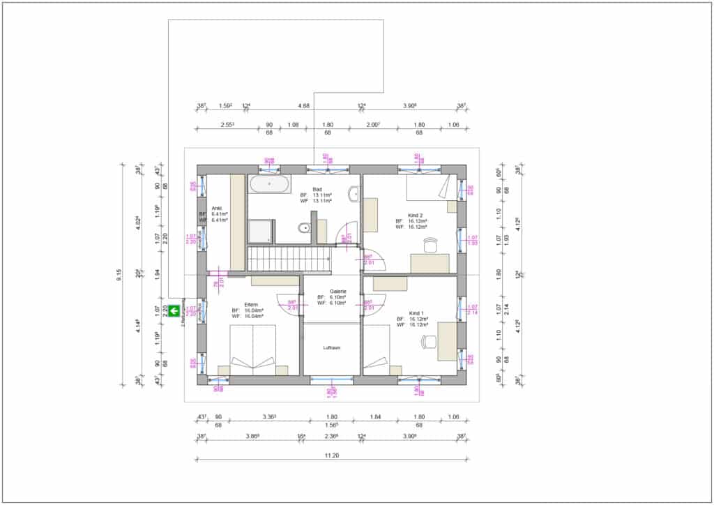
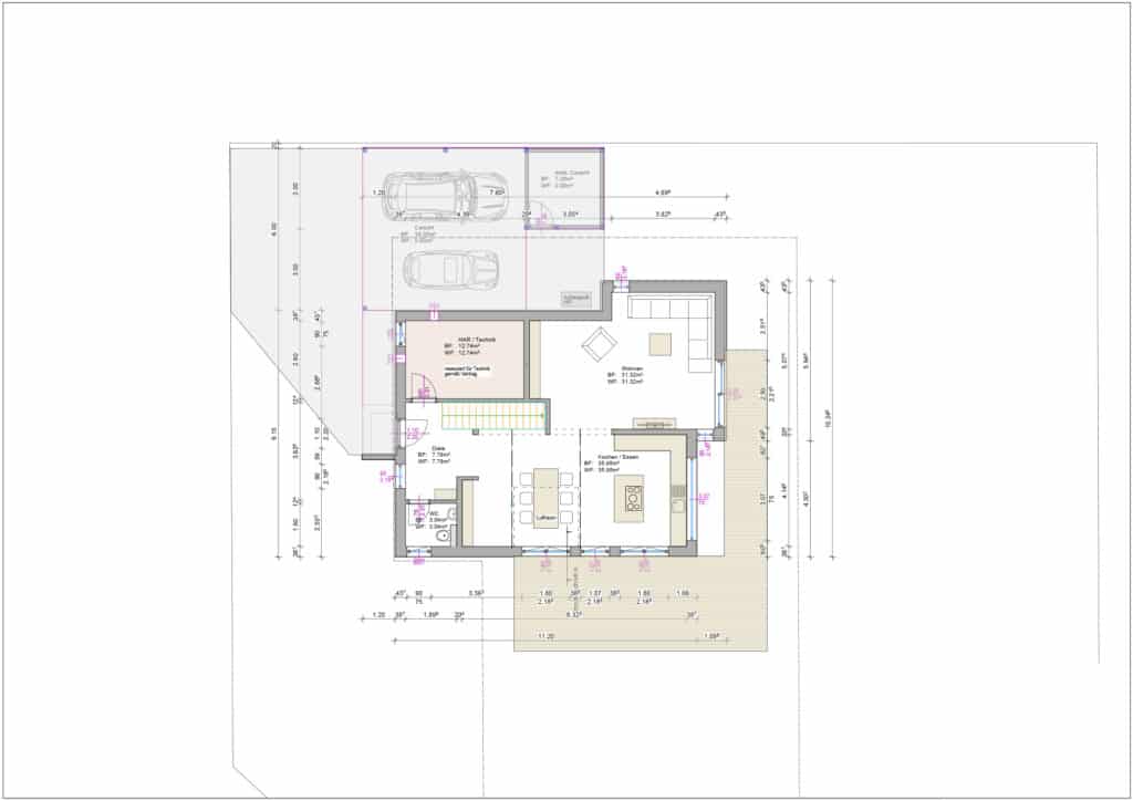
Wohnfläche gesamt

165 m²

Wohnfläche Erdgeschoss

91 m²

Wohnfläche Dachgeschoss

74 m²

Hauslänge

11,20 m

Hausbreite

9,15 m

Dachneigung

30°

Drempelhöhe

2,10 m

Extras

Erker EG | Ein­gangs­vor­dach | Car­port oder/und Gara­ge in gewünsch­ter Grö­ße optional

Grundrisse

Zum Seitenanfang