Navigation überspringen Sitemap anzeigen

TRENDLINE 159

Satteldachhaus Satteldachhaus Satteldach 2.30m - 2.70m 159

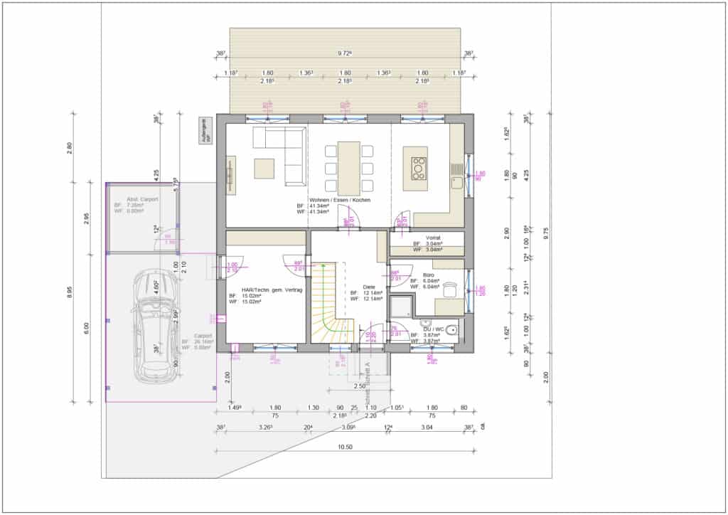
Hausdaten

Haustyp

Satteldachhaus

Dachform

Satteldach

Wohnfläche gesamt

159 m²

Wohnfläche Erdgeschoss

81 m²

Wohnfläche Dachgeschoss

78 m²

Hauslänge

10,50 m

Hausbreite

9,75 m

Dachneigung

26°

Drempelhöhe

2,30 m

Extras

Ein­gangs­vor­dach | Car­port oder/und Gara­ge in gewünsch­ter Grö­ße optional

Grundrisse

Zum Seitenanfang