Navigation überspringen Sitemap anzeigen

TRENDLINE 150

Satteldachhaus Satteldachhaus Satteldach 1.80m - 2.20m 150

Hausdaten

Haustyp

Satteldachhaus

Dachform

Satteldach

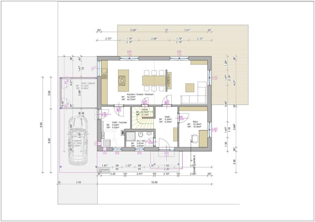
Wohnfläche gesamt

150 m²

Wohnfläche Erdgeschoss

77 m²

Wohnfläche Dachgeschoss

73 m²

Hauslänge

10,80 m

Hausbreite

9,00 m

Dachneigung

38°

Drempelhöhe

2,20 m

Extras

Quer­gie­bel | 2 Fens­ter im Spitz­bo­den | Ein­gangs­vor­dach | Car­port oder/und Gara­ge in gewünsch­ter Grö­ße optional

Grundrisse

Zum Seitenanfang