Navigation überspringen Sitemap anzeigen

TRENDLINE 149

Satteldachhaus Satteldachhaus Satteldach 1.80m - 2.20m 149

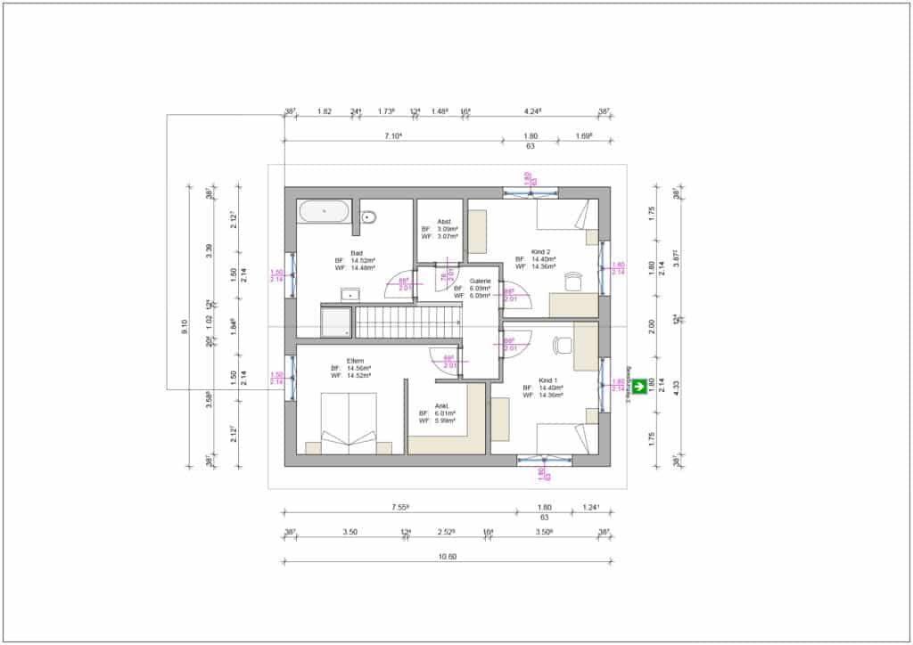
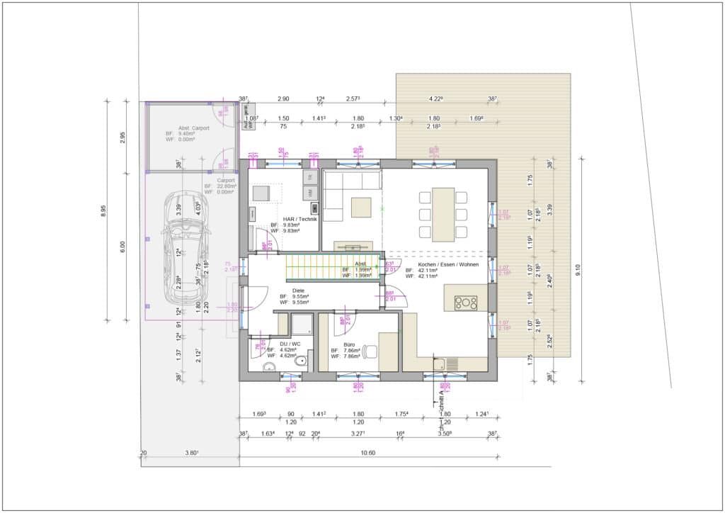
Hausdaten

Haustyp

Satteldachhaus

Dachform

Satteldach

Wohnfläche gesamt

149 m²

Wohnfläche Erdgeschoss

76 m²

Wohnfläche Dachgeschoss

73 m²

Hauslänge

10,60 m

Hausbreite

9,10 m

Dachneigung

30°

Drempelhöhe

2,10 m

Grundrisse

Zum Seitenanfang