Navigation überspringen Sitemap anzeigen

TRENDLINE 142

Satteldachhaus Satteldachhaus Satteldach 1.40m - 1.70m 142

Hausdaten

Haustyp

Satteldachhaus

Dachform

Satteldach

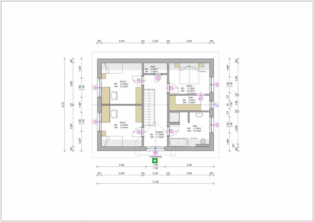
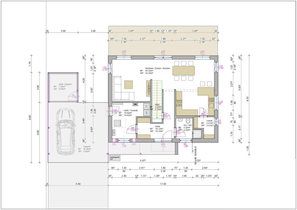
Wohnfläche gesamt

142 m²

Wohnfläche Erdgeschoss

75 m²

Wohnfläche Dachgeschoss

67 m²

Hauslänge

11,00 m

Hausbreite

8,70 m

Dachneigung

35°

Drempelhöhe

1,60 m

Extras

Quer­gie­bel | Ein­gangs­vor­dach | Car­port oder/und Gara­ge in gewünsch­ter Grö­ße optional

Grundrisse

Zum Seitenanfang