Navigation überspringen Sitemap anzeigen

STADTVILLA 173

Stadtvilla Stadtvilla Walmdach 173

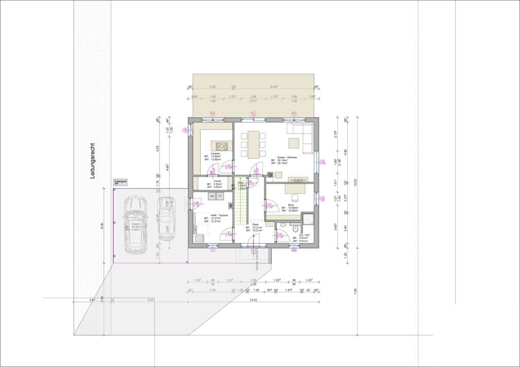
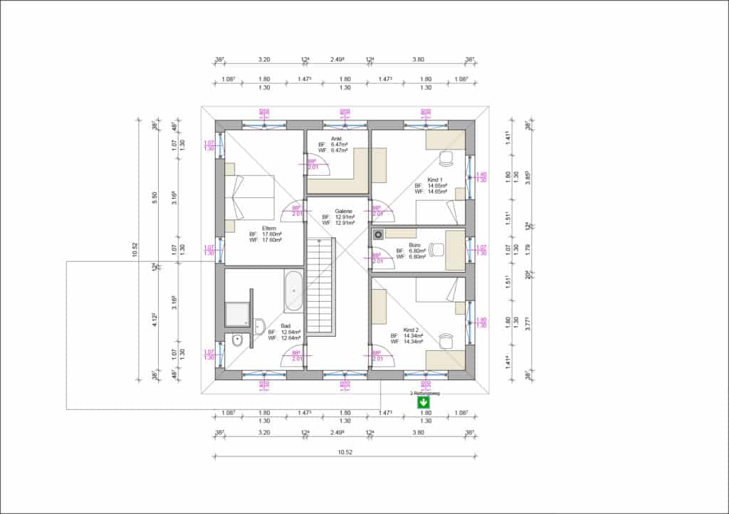
Hausdaten

Haustyp

Stadtvilla

Dachform

Walmdach

Wohnfläche gesamt

173 m²

Wohnfläche Erdgeschoss

85 m²

Wohnfläche Obergeschoss

88 m²

Hauslänge

10,52 m

Hausbreite

10,52 m

Extras

Ein­gangs­vor­dach | Car­port oder/und Gara­ge in gewünsch­ter Grö­ße optional

Grundrisse

Zum Seitenanfang