Navigation überspringen Sitemap anzeigen

LIFESTYLE 171

Satteldachhaus Satteldachhaus Satteldach 2.30m - 2.70m 171

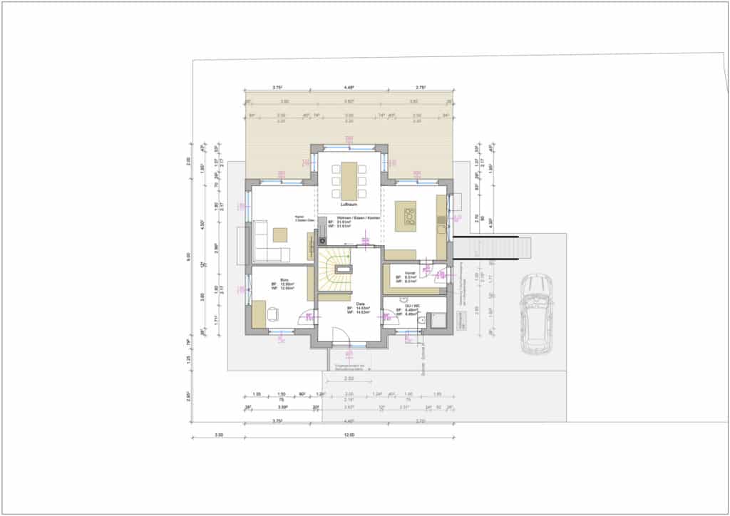
Hausdaten

Haustyp

Satteldachhaus

Dachform

Satteldach

Wohnfläche gesamt

171 m²

Wohnfläche Erdgeschoss

92 m²

Wohnfläche Dachgeschoss

79 m²

Hauslänge

12,00 m

Hausbreite

9,00 m

Dachneigung

25°

Drempelhöhe

2,50 m

Extras

Anbau aus Erker und Quer­gie­bel auf der Rück­sei­te | Anbau über EG und OG auf der Ein­gangs­sei­te | Eingangsvordach

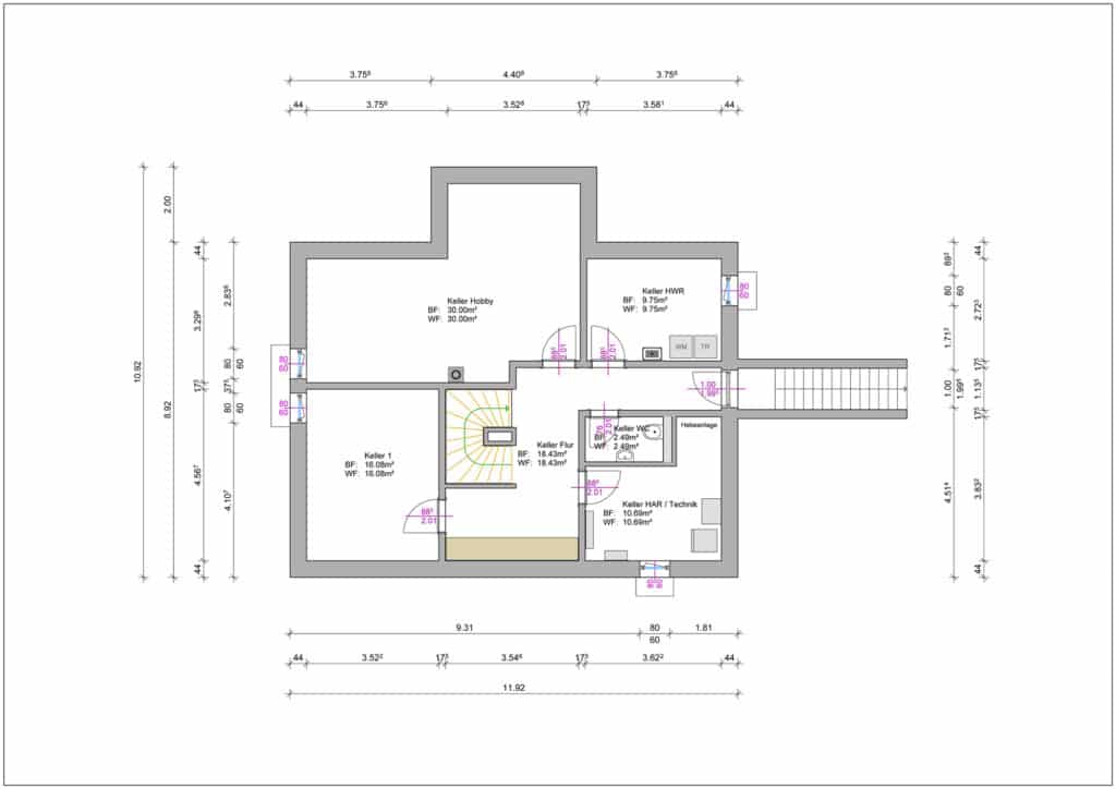
Die­se Haus­idee ist hier mit einem Kel­ler abge­bil­det. Einen Kel­ler kön­nen wir Ihnen optio­nal zu jeder Haus­idee mit anbie­ten. Dazu ist vor­her immer ein Gespräch notwendig.

Zum Seitenanfang