Navigation überspringen Sitemap anzeigen

LIFESTYLE 151

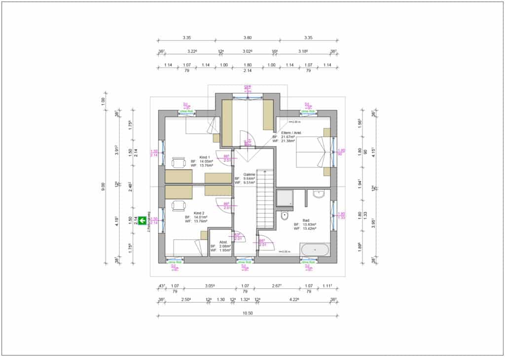
Satteldachhaus Satteldachhaus Satteldach 1.80m - 2.20m 151

Hausdaten

Haustyp

Satteldachhaus

Dachform

Satteldach

Wohnfläche gesamt

151 m²

Wohnfläche Erdgeschoss

77 m²

Wohnfläche Dachgeschoss

74 m²

Hauslänge

10,50 m

Hausbreite

9,00 m

Dachneigung

30°

Drempelhöhe

2,00 m

Extras

Anbau aus Erker und Quer­gie­bel | Ein­gangs­vor­dach | Car­port oder/und Gara­ge in gewünsch­ter Grö­ße optional

Grundrisse

Zum Seitenanfang