Navigation überspringen Sitemap anzeigen

JUNGE FAMILIE 161

Satteldachhaus Satteldachhaus Satteldach 1.00m - 1.30m 161

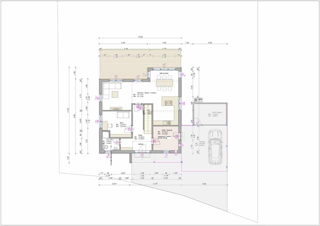
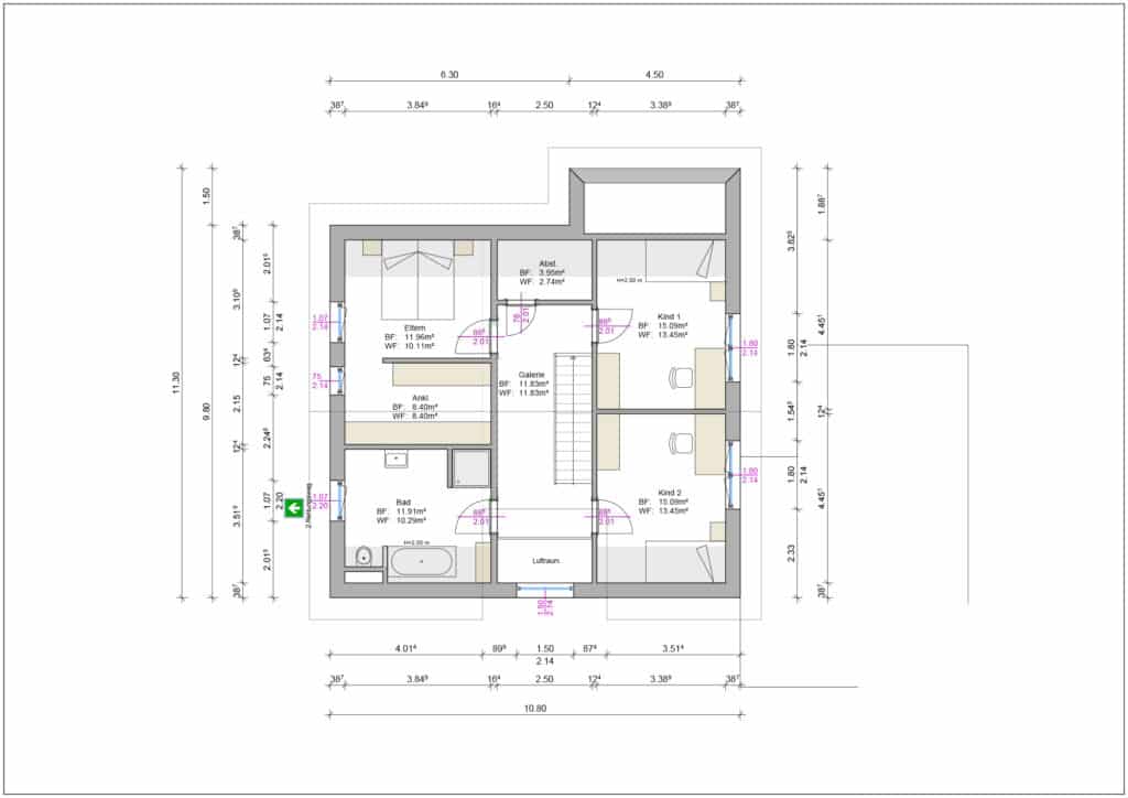
Hausdaten

Haustyp

Satteldachhaus

Dachform

Satteldach

Wohnfläche gesamt

161 m²

Wohnfläche Erdgeschoss

90 m²

Wohnfläche Dachgeschoss

71 m²

Hauslänge

10,80 m

Hausbreite

9,80 m

Dachneigung

38°

Drempelhöhe

1,30 m

Extras

Erker EG | Quer­gie­bel | Ein­gangs­vor­dach | Car­port oder/und Gara­ge in gewünsch­ter Grö­ße optional

Grundrisse

Zum Seitenanfang