Navigation überspringen Sitemap anzeigen

JUNGE FAMILIE 148

Satteldachhaus Satteldachhaus Satteldach 1.40m - 1.70m 148

Hausdaten

Haustyp

Satteldachhaus

Dachform

Satteldach

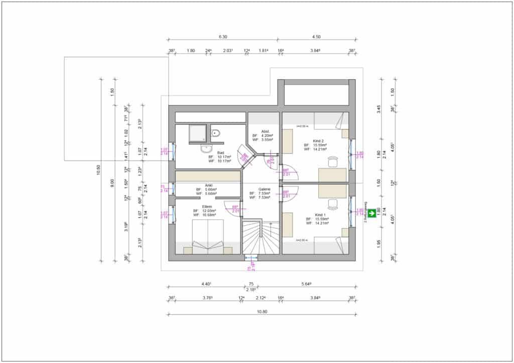
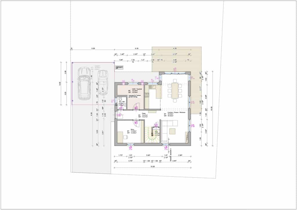
Wohnfläche gesamt

148 m²

Wohnfläche Erdgeschoss

82 m²

Wohnfläche Dachgeschoss

66 m²

Hauslänge

10,80 m

Hausbreite

9,00 m

Dachneigung

38°

Drempelhöhe

1,50 m

Extras

Erker EG | Car­port oder/und Gara­ge in gewünsch­ter Grö­ße optional

Grundrisse

Zum Seitenanfang