Navigation überspringen Sitemap anzeigen

DOPPELHAUS 150

Doppelhaus Doppelhaus Satteldach < 1.00m 150

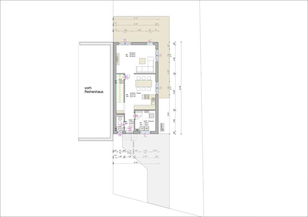
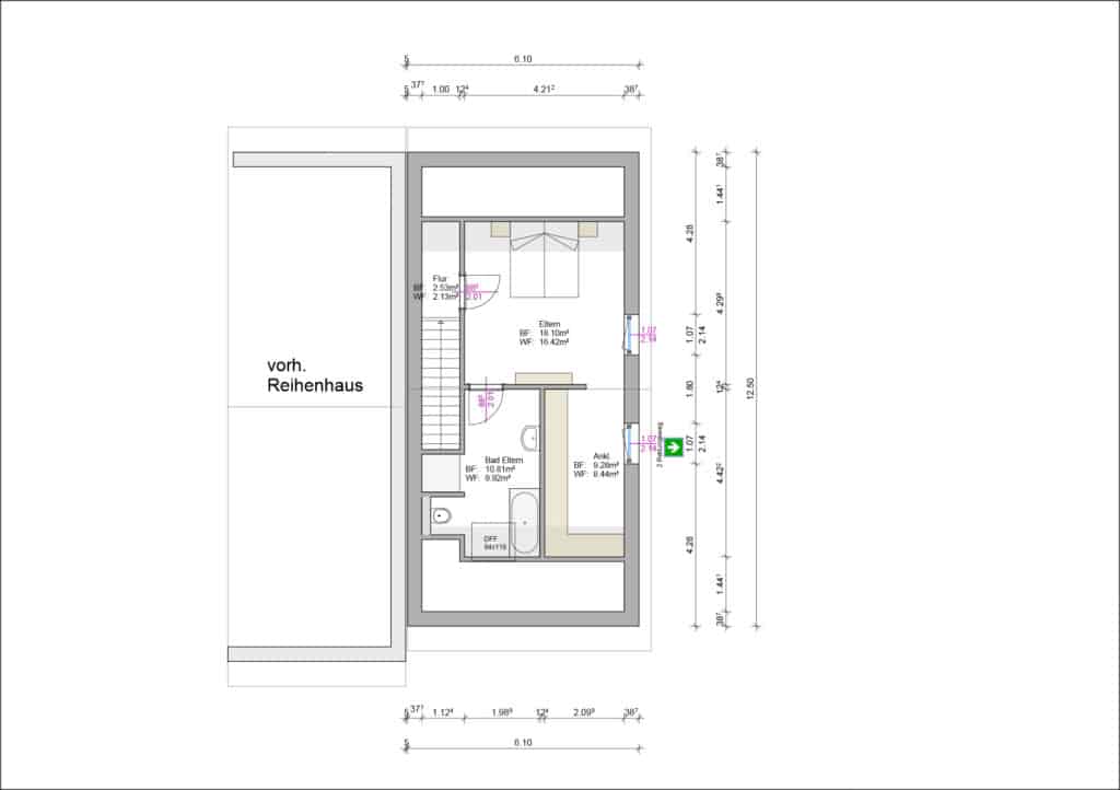
Hausdaten (pro Hälfte)

Haustyp

Doppelhaus

Dachform

Satteldach

Wohnfläche gesamt

150 m²

Wohnfläche Erdgeschoss

58 m²

Wohnfläche Dachgeschoss

37 m²

Hauslänge

12,50 m

Hausbreite

6,10 m

Dachneigung

32°

Drempelhöhe

0,70 m

Extras

Hier als Dop­pel­haus­hälf­te dar­ge­stellt | Woh­nen über 2,5 Geschosse

Grundrisse

Zum Seitenanfang