Navigation überspringen Sitemap anzeigen

DOPPELHAUS 135

Doppelhaus Doppelhaus Satteldach < 1.00m 135

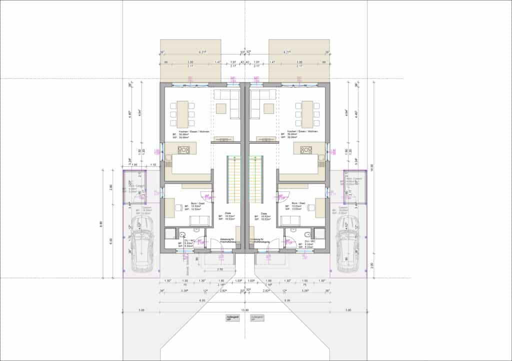
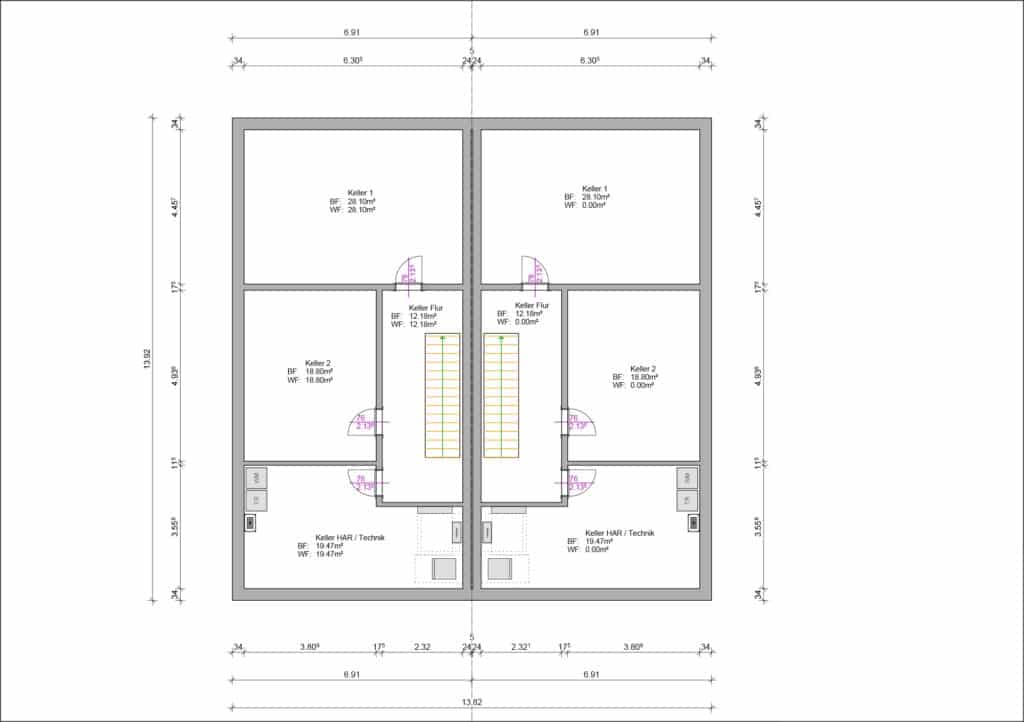
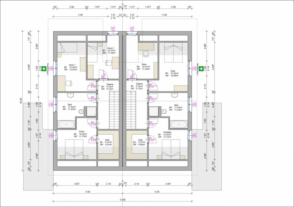
Hausdaten (pro Hälfte)

Haustyp

Doppelhaus

Dachform

Satteldach

Wohnfläche gesamt

135 m²

Wohnfläche Erdgeschoss

75 m²

Wohnfläche Dachgeschoss

60 m²

Hauslänge

14,00 m

Hausbreite

6,95 m

Dachneigung

38°

Drempelhöhe

0,50 m

Extras

Quer­gie­bel | Ein­gangs­vor­dach | Car­port oder/und Gara­ge in gewünsch­ter Grö­ße optional

Zum Seitenanfang