Navigation überspringen Sitemap anzeigen

DOPPELHAUS 129

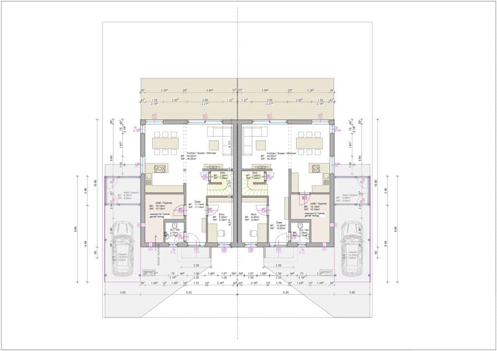
Doppelhaus Doppelhaus Satteldach 1.00m - 1.30m 129

Hausdaten

Haustyp

Doppelhaus

Dachform

Satteldach

Wohnfläche gesamt

129 m²

Wohnfläche Erdgeschoss

69 m²

Wohnfläche Dachgeschoss

60 m²

Hauslänge

10,80 m

Hausbreite

8,20 m

Dachneigung

36°

Drempelhöhe

1,20 m

Extras

Quer­gie­bel | Ein­gangs­vor­dach | Car­port oder/und Gara­ge in gewünsch­ter Grö­ße optional

Grundrisse

Zum Seitenanfang